Main Image
Unit 1B 1155 Star Park Circle Coronado CA 92118
Price $ 2,395,000
Listing ID 260007178SD
Status Active
Property Type Condominium
County San Diego
Neighborhood Coronado Village
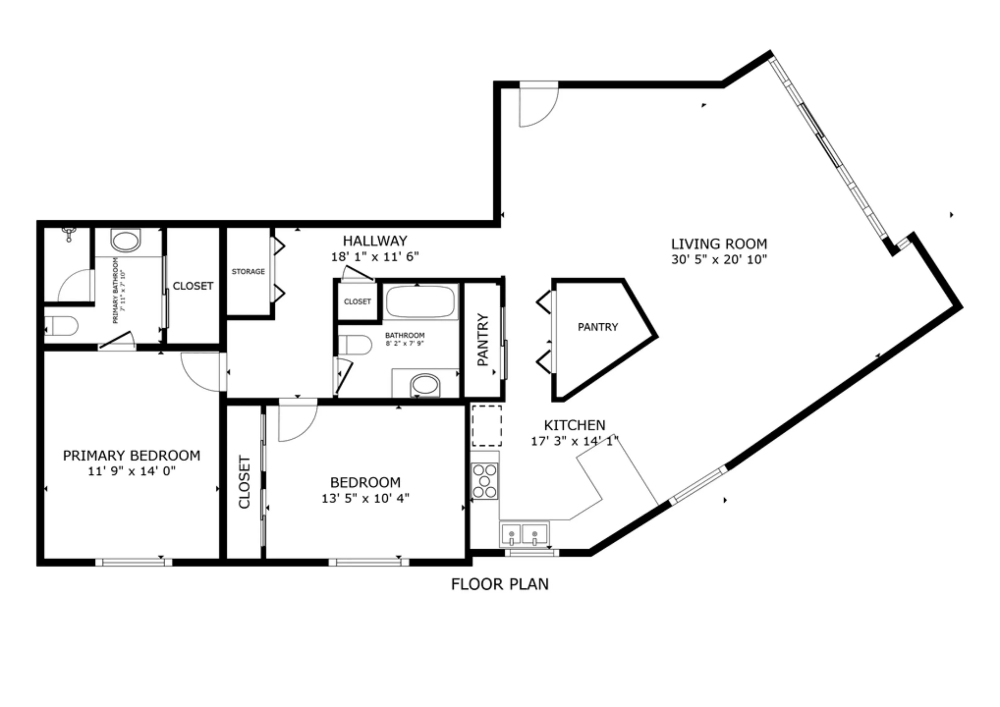
Beds 2
Baths 2
House Size 1351
Year Built 1964
Days on website 11
Description
Welcome to Star Park Circle - a rare condominium offering west of Orange Avenue, just moments from the beach, Hotel del Coronado, and the heart of the Village with its charming shops and restaurants. This beautifully remodeled first-floor residence is filled with natural light and thoughtfully designed to embrace seamless coastal living. The open-concept layout features a well-appointed kitchen with LG appliances, a peninsula for casual dining, and a walk-in pantry, along with inviting living and dining spaces that flow effortlessly to a spacious, covered patio - perfect for relaxing, entertaining, and enjoying the ocean breeze year-round. Thoughtful finishes throughout, including wool carpeting, add warmth and texture. Offering two bedrooms and two bathrooms, the layout lives like a single-family home - providing both comfort and privacy. The home offers a refined yet comfortable feel, ideal as a full-time residence or coastal retreat. Additional highlights include a full-size laundry closet, covered parking, and dedicated storage unit - providing both convenience and functionality. Ideally located just one block to the ocean, the Village, and the iconic Hotel del Coronado, this turnkey residence presents an exceptional opportunity to enjoy the best of island living in a truly premier location.
Location
Financial Information
List Price: $ 2395000
Property Features
Appliances: Dishwasher, Disposal, Microwave, Refrigerator
Association Amenities: Insurance, Trash, Water
Association Fee Frequency: Monthly
Common Interest: Condominium
Construction Materials: Stucco
Levels: One
Parking Features: Assigned, Carport, Covered
Patio And Porch Features: Covered
Roof: Composition
Senior Community YN: false
MLS Area Major: 92118 - Coronado
City: Coronado
Senior Community YN: false
Listed By:   Scott Aurich   Pacific Sotheby's International Realty 
CA Lic#
Property/PHOTO-Jpeg/1156036266/2/Mjg4MC84MzgzLzIw/MjAvMTY2OTcvMTc3NTA2NzE0Ng/tdi0zEyOeHK5QYJ6lhMH5eLCgsaL5CWmHLTtIQyiueE Property/PHOTO-Jpeg/1156036266/3/Mjg4MC84MzgzLzIw/MjAvMTY2OTcvMTc3NTA2NzE0Ng/Uydi6W4pQlVRiaQSkiOMqBhJ8082D-Pb_aqUSPditP4 Property/PHOTO-Jpeg/1156036266/4/Mjg4MC84MzgzLzIw/MjAvMTY2OTcvMTc3NTA2NzE0Ng/Eut9ZDPqApOMuBy-4aaMwZIlJtLFen88RPKE7WJJZ2Y Property/PHOTO-Jpeg/1156036266/5/Mjg4MC84MzgzLzIw/MjAvMTY2OTcvMTc3NTA2NzE0Ng/FO5hWyBxMlj0QY_YFicG0hwWG_vkyN9FlA8QYTQm5rg